КОМИCCИЮ С ПOКУПАТЕЛЯ НE БЕPЕM!
Продам новый современный дом 120 м2 на участке 12 соток в живописном месте п. Зарубино с развитой инфраструктурой.
Дом построен полностью из керамического кирпича, толщина стен 640 мм, облицован. Внутри выполнена штукатурка стен и стяжка пола.
Надёжный фундамент: буронабивные сваи + ростверк.
Крыша металлочерепица 0,5 мм, утепление по перекрытию.
Панорамные окна ПВХ, 5-ти камерный профиль с ламинацией.
Электричество подключено, выполнена разводка по дому.
Газ подключен. Установлен итальянский газовый котёл и радиаторы отопления. Предусмотрено устройство тёплых полов.
Собственная скважина, септик.
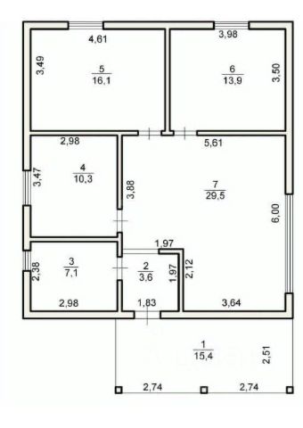
Удобная планировка: просторный холл, 3 спальни (из одной выход на веранду), большой санузел, просторная кухня-гостиная с выходом на веранду.
Прекрасный вид на озеро.
Участок ровный, сухой, правильной формы. Межевание выполнено, в собственности.
Поблизости новые современные жилые дома.
Хорошая транспортная доступность, круглогодичный подъезд, всего 10 минут от города.
Развитая инфраструктура в п. Зарубино: детский сад, школа, стадион, амбулатория, магазины, ПВЗ, банк, почта, остановка общественного транспорта (маршрутки 17 и 147).
Уютный дом Вашей мечты!
Подходит под льготные виды ипотеки.
Покупатель абсолютно бесплатно получает:
- проверку документов;
- помощь в вопросах, связанных с опекой, нотариусом, в ипотеке;
- проведение сделки;
- гарантию безопасности сделки;
- присутствие нашего сотрудника на передаче объекта недвижимости.
МЫ ДАРИМ ПОДАРКИ для дома и ремонта!
Сертификаты:
50 000 рублей, в качестве 10 % скидки на ремонтные работы от компании "Дом мечты";
100 000 руб. на мебель магазин МебельНик, в качестве 10 % скидки;
50 000 руб. на весь ассортимент салон штор "Уютный Дом", в качестве 10 % скидки;
10 000 руб. на приобретение товаров в печном магазине "Тепло и Уют";
Скидочные карты на строительные материалы и мебель:
- от 5 до 30% скидку на Дизайн-проект и материалы в интерьерном салоне "Пятый элемент";
- до 7% скидку на плитку KERAMA MARAZZI;
- 10% скидку на септики "ЭкоСептор";
- 10% скидку при заказе кухни, гардеробной или шкафа-купе в компании VIORE
- 10% скидку на межкомнатные и входные двери, обои, напольные покрытия в компании "Декор Престиж".
И самое важное в конце ремонта:
купон на скидку 15% на услуги психолога, гештальт-терапевта, EMDR терапевта Елены Завацкой;
ваучер на отдых в Турции
сертификат со скидкой на услуги бьюти-магазина "Эстетика"
Агентство "Усадьба" поможет Вам с одобрением ипотеки от ведущих банков, на самых выгодных условиях.
Деятельность нашего агентства застрахована. Полное сопровождение сделки, юридическая чистота и безопасность.
19 лет на рынке недвижимости! Положительные отзывы о нашей работе!
Звоните!