


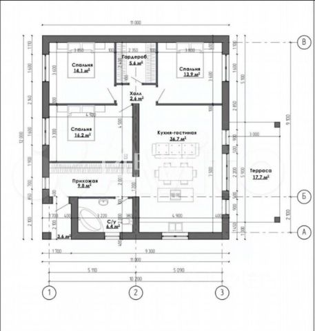
ВОЗМОЖНА РАССРОЧКА Продается уютный дом в живописном поселке Шунга, общей площадью 23 кв.м., который станет идеальным местом для вашего комфортного проживания или дачного отдыха. Участок площадью 6 соток полностью разработан и ухожен, на нем растут плодово-ягодные насаждения, которые порадуют вас свежими урожаями. На территории есть баня, хозпостройка и очаровательная беседка, где можно проводить время с семьей и друзьями, наслаждаясь природой. Участок угловой, что обеспечивает дополнительное пространство и удобный доступ. В доме предусмотрены два выхода, а также имеется летний водопровод, что значительно упрощает жизнь в теплое время года. Все необходимые коммуникации уже подключены: электричество, вода и отопление. Газ проходит по границе участка, что дает возможность легко подключиться. Поселок Шунга предлагает все условия для комфортной жизни: в шаговой доступности находятся продуктовые магазины, детский сад, школа, пункты выдачи и остановка общественного транспорта. Здесь также расположена церковь, что добавляет уюта и спокойствия. Не упустите возможность стать владельцем этого замечательного дома в тихом и дружелюбном поселке! Звоните прямо сейчас, чтобы узнать подробности и записаться на просмотр!. Дополнительно оплачивается комиссия с покупателя. Код пользователя: 95146 Номер в базе: 4436602






















































































