Мы используем куки-файлы. Соглашение об использовании
Обновлено: сегодня, 11:40
Только на Циан

Продается 1-этажный дом, 85,1 м²

Общая площадь85,1 м²
Участок8,5 сот.
Материал домаДеревянный
Этажей в доме1
Год постройки2025
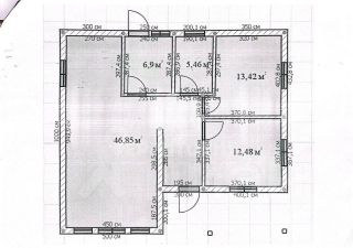
id:2575. Продажа современного каркасного дома 85 кв.м. на участке 8,5 соток Предлагаем Вашему вниманию уютный и теплый каркасный дом для комфортной жизни всей семьей! Основные характеристики: Общая площадь: 85 кв.м. Земельный участок: 8,5 соток Количество спален: 2 Просторная и светлая кухня-гостиная 46,5 кв.м. Совмещенный санузел Особенности строительства: Надежный фундамент на железобетонных сваях (4 м) Качественное утепление стен и полов 200 мм базальтовым утеплителем Внутренняя отделка: гипсокартон 12 мм на металлическом профиле Крыша: металлочерепица ( 0,5 мм ) Коммуникации и отопление: Современная медная электропроводка (негорючий кабель) Разводка отопления с установленными батареями Новый газовый котел Baxi (24 кВТ) Дополнительные преимущества: Защита от грызунов: низ лаг закрыт металлической сеткой Качественная отделка и продуманная планировка Инфраструктура: Магазины Аптеки Детский сад 17, 3 Центр образования Волжский Занесем выгодную ипотеку: скидки по ставке Юридическая проверка документов Безопасные расчеты. По завершению сделки мы даем свои гарантии и "Сертификат безопасности". Звоните прямо сейчас! Ответим на все вопросы и организуем просмотр.
Позвоните автору
Вам ответят на все вопросы

О доме

Площадь

85,1 м²

Материал дома

Деревянный

Количество этажей

1

Количество спален

3

Год постройки

2025

Об участке

Площадь

8,5 сот.

Статус участка

Индивидуальное жилищное строительство

Коммуникации и удобства

Канализация

Есть

Водоснабжение

Есть

Электричество

Есть

Газ

Есть

Дополнительно

Охрана

Спросите умного помощника
Получите экспертное мнение о жилье

Расположение

Подпишитесь на объявления в этой локации
Мы сообщим, как только поблизости появится что‑нибудь новенькое
Ипотечный калькулятор
  • Базовая
  • Семейная
  • ИТ-ипотека
  • 20%
  • 30%
  • 40%
  • 50%
лет
  • 10 лет
  • 20 лет
  • 30 лет
Загружаем предложения от застройщика и банков
Хотите продать недвижимость?Разместите объявление на ЦианРазместить
6 200 000 ₽
Цена за метр
72 855 ₽/м²
Ипотека
возможна
Агентство недвижимости
Документы проверены