Мы используем куки-файлы. Соглашение об использовании
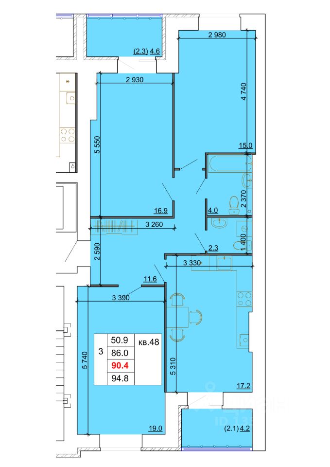
Общая площадь90,4 м²
Жилая площадь50,9 м²
Площадь кухни17,2 м²
Этаж9 из 9
Год сдачи2027
ДомНе сдан
ОтделкаНет информации
Продаётся 3-комнатная квартира в строящемся доме (з/у 90 (9-я очередь)), срок сдачи: I-кв. 2027, общей площадью 90.4 кв.м., на 9 этаже. Ближайшая к "ЖК" крупная автомагистраль - Кинешемское шоссе, ул. Профсоюзная. Дома будут выполнены из качественных материалов керамического кирпича с автономным отоплением в насыщенных и приглушенных цветах. Комплекс будет состоять из двенадцати 9-ти этажных домов класса комфорт плюс. В домах ЖК есть однокомнатные, двухкомнатные и трёхкомнатные квартиры с разнообразными планировками. Помещения сдаются в черновой отделке, с остеклёнными лоджиями, всеми необходимыми коммуникациями, радиаторами отопления. Высота потолков составляет 2,7 метра. В каждом подъезде современные грузопассажирские лифты, колясочные, отделка с авторским дизайном. Для автомобилей предусмотрен придомовой паркинг. На территории комплекса, которая облагорожена и озеленена расположен новый крупный детский сад, новая школа, площадки для игр малышей и занятий спортом, построена детская поликлиника. В пешей доступности от ЖК имеются школы и детские сады, медицинские учреждения, торговые центры, сетевые супермаркеты, небольшие специализированные магазины, аптеки, банковские отделения, сервисные службы, салоны красоты. Для прогулок и отдыха жителей недалеко от ЖК расположен обновленный Парк Победы. Жилой комплекс "Лесной квартал" - это благоприятный микроклимат, качественное и эргономично спланированное современное жильё, транспортная доступность и близость инфраструктурных объектов.,

О квартире

Тип жилья

Новостройка

Общая площадь

90,4 м²

Жилая площадь

50,9 м²

Площадь кухни

17,2 м²

Высота потолков

2,7 м

Санузел

1 совмещенный

Вид из окон

Во двор

Отделка

Нет информации

О доме

Тип дома

Кирпичный

Пандус

Есть

Понравилась квартира — узнайте о ней больше

Застройщик ответит на все вопросы

Отделка в ЖК

  • Без отделки
  • Черновая
Похоже на то, что вы ищете?

Акции в ЖК «Лесной квартал»

Узнайте про персональные условия и дополнительные скидки при покупке квартиры у застройщика

Материнский капитал

Ипотечный калькулятор
  • Базовая
  • Семейная
  • ИТ-ипотека
  • 20%
  • 30%
  • 40%
  • 50%
лет
  • 10 лет
  • 20 лет
  • 30 лет
Загружаем предложения от застройщика и банков

Расположение

Корпус проверен наш.дом.рф
Обновлено 13 мая 2026
  • Нет в реестре проблемных объектов
  • Застройщик не банкрот
  • Есть эскроу счёт
  • Актуальные фото стройки

Ещё квартиры в жилом комплексе

9 квартир в продаже · Сдача в 2026—2027, есть сданные
ЗастройщикГК МастерСтрой
Год основания: 2013
Строится: 5 домов в 3 ЖК
9 763 200 ₽
Цена за метр
108 000 ₽/м²
Условия сделки
долевое участие (214-ФЗ)