Мы используем куки-файлы. Соглашение об использовании
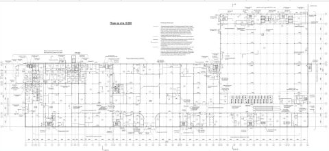
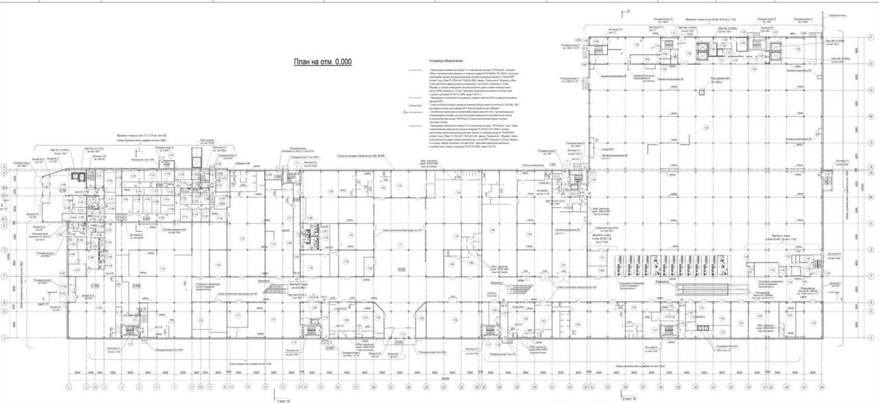
Помещение свободного назначения, 6 125 м²

Продается помещение свободного назначения, 6 125 м²

Площадь6 125 м²
Этаж1 из 7
ВОЗМОЖНА РАССРОЧКА Продается семиэтажный корпус в составе ТРЦ "РИО" по адресу: Кострома, ул. Магистральная, 20. Объект обладает статусом капитального строения и характеризуется автономной эксплуатацией за счет собственной газовой котельной, что обеспечивает полный контроль над расходами на отопление. Транспортная доступность здания является одним из ключевых преимуществ: оно расположено на первой линии Магистральной улицы, которая служит прямым продолжением автопешеходного моста в направлении Ярославля и Москвы. Это гарантирует высокий автомобильный и пешеходный трафик. Для арендаторов и посетителей предусмотрен отдельный вход через торговый центр, а также собственный наземный паркинг. Инфраструктура включает три лифта — два грузопассажирских и один грузовой, что оптимизирует логистику и перемещение. Развитая окружающая среда с остановками общественного транспорта и магазинами крупного торгово-развлекательного центра создает готовую среду для бизнеса. Объект предлагается к продаже непосредственно от собственника.. Дополнительно оплачивается комиссия с покупателя. Код пользователя: 1245797227 Номер в базе: 10028499
lock

Войдите или зарегистрируйтесь
для просмотра информации

Просматривайте условия сделки и всю информацию об объекте
Сохраняйте фильтры в поиске и не вводите заново
Доступ к избранному с любого устройства
Неограниченное добавление в избранное
Позвоните автору
Вам ответят на все вопросы
Остались вопросы по объявлению?
Позвоните владельцу объявления и уточните необходимую информацию.
  • Инфраструктура
  • Похожие рядом
Помощь надёжных риелторов
Риелтор партнёр Циан поможет купить или продать любую недвижимость
400 000 000 ₽
5 360 429 $
4 551 160
Цена за метр
65 307 ₽
Налог
НДС включен: 72 131 147 ₽
Агентство недвижимости
На Циан
9 лет
Объектов в работе
более 1000
Риелтор
Суперагент