Мы используем куки-файлы. Соглашение об использовании
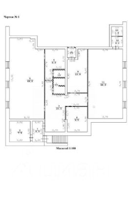
Помещение свободного назначения, 170 м²

Продается помещение свободного назначения, 170 м²

Площадь170 м²
Этаж1 из 4
Продам помещение в полуцокольном этаже кирпичного дома. Под собственный бизнес или оставить арендаторов: Московский филиал Первая школа телевидения. АОГВ! Отдельный вход с ул. Индустриальная. Окна ПВХ, приточная вентиляция, ремонт, запасной выход. 2 зала, кабинет, 2 раздевалки, 2 санузла. Звоните, показ в удобное для вас время. Без комиссии для покупателя
lock

Войдите или зарегистрируйтесь
для просмотра информации

Просматривайте условия сделки и всю информацию об объекте
Сохраняйте фильтры в поиске и не вводите заново
Доступ к избранному с любого устройства
Неограниченное добавление в избранное
Позвоните автору
Вам ответят на все вопросы
Остались вопросы по объявлению?
Позвоните владельцу объявления и уточните необходимую информацию.
  • Инфраструктура
  • Похожие рядом
  • Общая площадь170 м²
Приточная вентиляция
Местное кондиционирование
Автономное отопление
Сигнализация
Помощь надёжных риелторов
Риелтор партнёр Циан поможет купить или продать любую недвижимость
Автор объявленияОльга Хваткова
Суперагент
  • 6 лет 5 месяцев на Циане
  • 9 объявлений
  • 8 500 000 ₽
    112 995 $
    96 526
    Цена за метр
    50 000 ₽
    Налог
    УСН
    Автор объявленияОльга Хваткова
    Суперагент