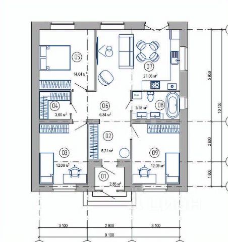
ВОЗМОЖНОСТЬ ПОКУПКИ ДОМА В ЗАЧЕТ ВАШЕГО ЖИЛЬЯ (ТРЕЙД-ИН)! Продам дом в центре Малиновки. Дом - Фундaмент: ж/б плита - Стены: газосиликатный блок D500, толщиной 400, облицовка дорогой керамический кирпич - Перекрытия ж/б плиты 220 - Перегородки: газосиликатный блок 600х100х300 - ж/б лестница на второй этаж - Крыша с утеплением 200мм - Kровля: мягкая кровля с водосточной системой и софитами - Металлическая дверь, окна профиль 70 - Система отопления: 2-х контурный котел - Разводка электричества по помещениям (1 цикл) - Выполнена отмостка и площадка перед домом с двух сторон плиткой. (Все коммуникации: электричество, газ, вода, канализация) Дом введен в эксплуатацию (сдан) ПОДХОДИТ ПОД СЕМЕЙНУЮ ИПОТЕКУ от 6% и IТ ИПОТЕКУ от 6% Можно использовать материнский капитал, военный сертификат. Дом в предчистовой отделке, со всеми коммуникациями. На первом этаже размещены большая кухня-гостиная, спальня или кабинет, санузел и прихожая с пространством под лестницей для хранения вещей. На втором этаж три спальни и просторный санузел. Малиновка - самый быстро развивающийся коттеджный поселок. Участок - 9,5 соток в собственности для ИЖС - Участок сухой квадратной формы (31х31) - Электричество - Газ - Водоснабжение центральное - Канализация септик Участок в центральной части поселка, в будущем в шаговой доступности магазины, школа, д/с, аптека и спортивные объекты и остановка общественного транспорта. Сейчас можно попасть в поселок двумя путями, через Селище (центральный въезд), и на улицу Магистральную у Мотордеталя ЗВОНИТЕ, ОТВЕЧУ НА ВОПРОСЫ, ОРГАНИЗУЮ ПОКАЗ! Дополнительные работы по желанию покупателя (не входят в стоимость дома) При необходимости строительная организация готова выполнить по Вашему заданию: - Крыльцо/веранду/террасу - Ремонт под ключ, в том числе по Вашему дизайну - Благоустройство участка - Забор/навес/гараж ВОЗМОЖНО СТРОИТЕЛЬСТВО ДОМА НА ВАШЕМ УЧАСТКЕ. МЫ ДАРИМ ПОДАРКИ для дома и ремонта! Сертификаты: 50 000 рублей, в качестве 10 % скидки на ремонтные работы от компании "Дом мечты"; 100 000 руб. на мебель магазин МебельНик, в качестве 10 % скидки; 50 000 руб. на весь ассортимент салон штор "Уютный Дом", в качестве 10 % скидки; 10 000 руб. на приобретение товаров в печном магазине "Тепло и Уют"; Скидочные карты на строительные материалы и мебель: - от 5 до 30% скидку на Дизайн-проект и материалы в интерьерном салоне "Пятый элемент"; - до 7% скидку на плитку KERAMA MARAZZI; - 10% скидку на септики "ЭкоСептор"; - 10% скидку при заказе кухни, гардеробной или шкафа-купе в компании VIORE - 10% скидку на межкомнатные и входные двери, обои, напольные покрытия в компании "Декор Престиж". И самое важное в конце ремонта: купон на скидку 15% на услуги психолога, гештальт-терапевта, EMDR терапевта Елены Завацкой; ваучер на отдых в Турции сертификат со скидкой на услуги бьюти-магазина "Эстетика" Покупатель абсолютно бесплатно получает: - проверку документов. - помощь в вопросах, связанных с опекой, нотариусом, в ипотеке. - проведение сделки. - гарантию безопасности сделки. - присутствие нашего сотрудника на передаче жилья. Наше агентство "Усадьба" поможет Вам с одобрением ипотеки на выгодных условиях от ведущих банков. - Наша деятельность застрахована. - 19 лет на рынке недвижимости! - Положительные отзывы о нашей работе!





















































































